મોરબી શહેરની ટ્રાફિક સમસ્યાના કાયમી ઉકેલ માટે મહાનગરપાલિકા દ્વારા મચ્છુ નદી પર નવા ડાઉનસ્ટ્રીમ બ્રિજના નિર્માણ માટે ટેન્ડર પ્રક્રિયા હાથ ધરાઈ છે. અંદાજે રૂ. ૪૦ કરોડના ખર્ચે બનનારો આ બ્રિજ શાંતિવન આશ્રમથી વેજીટેબલ રોડ સુધી બનાવાશે, જે શહેરના વિવિધ વિસ્તારોને સીધી કનેક્ટિવિટી આપશે.
મોરબી શહેરના મધ્યમાંથી પસાર થતી મચ્છુ નદી પર હાલ એક આવન અને એક જાવન માટેના બ્રિજ ઉપલબ્ધ હોવાથી સમગ્ર શહેરનો ટ્રાફિક આ જ માર્ગ પરથી પસાર થાય છે. પરિણામે શહેરમાં ખાસ કરીને પીક અવર્સ દરમિયાન ભારે ટ્રાફિક જામની સમસ્યા સર્જાય છે. આ સમસ્યાનો કાયમી ઉકેલ લાવવા માટે મહાનગરપાલિકા દ્વારા પાડાપુલની ડાઉનસ્ટ્રીમ બાજુ નવા બ્રિજના નિર્માણ માટે ડીટેઈલ્ડ પ્રોજેક્ટ રિપોર્ટ (DPR) તૈયાર કરવામાં આવ્યો છે. ગુજરાત મ્યુનિસિપલ ફાયનાન્સ બોર્ડની યોજના હેઠળ અંદાજે રૂ. ૪૦ કરોડના ખર્ચે આ પ્રોજેક્ટ માટે ટેન્ડર પ્રક્રિયા લાઈવ કરવામાં આવી છે.
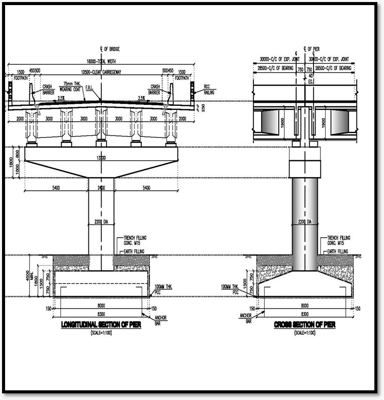
પ્રસ્તાવિત બ્રિજમાં અંદાજે ૧૬ ગાળા રહેશે, ૧૦.૫૦ મીટર પહોળો કેરેજ-વે તેમજ બન્ને બાજુ ૧.૫૦ મીટર પહોળી ફૂટપાથની સુવિધા આપવામાં આવશે. આ બ્રિજનું નિર્માણ શાંતિવન આશ્રમથી શરૂ થઈ મોરબી-૨ વિસ્તારમાં આવેલ વેજીટેબલ રોડ સુધી કરવામાં આવશે. બ્રિજ પૂર્ણ થયા બાદ વીસીપરા, લાયન્સનગર, રણછોડનગર, અમરેલી વિસ્તાર તેમજ મોરબી-૨ થી વિશીપરા વચ્ચે અવરજવર કરતા નાગરિકોને નોંધપાત્ર ટ્રાફિક રાહત મળશે. સાથે સાથે શહેરના વાહન વ્યવહારને વધુ સુવ્યવસ્થિત બનાવવામાં પણ મદદ મળશે.






